Espectacular ático con 4 dormitorios (3 muy grandes y 1 mediano), semi-reformado, calefacción por radiadores y caldera Baxi nueva. Ventanas de doble cristal, puerta blindada, alarma. Ascensor entre-plantas (hay que subir media planta). Edificio impecable, rehabilitado integralmente hace 4 años: fachada y patios SATE (aislamiento que mejora la eficiencia energética), ascensor nuevo. El certificado energético es E, pero se obtuvo antes de aislar el edificio y de cambiar las ventanas, por lo que probablemente sería B ó C si se hace un certificado nuevo ahora.
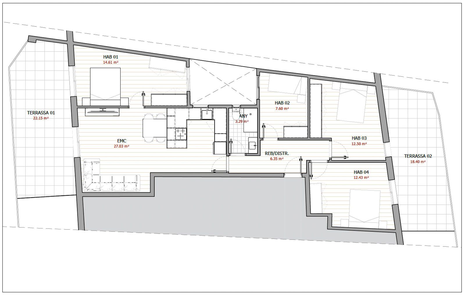
El piso originariamente tenía 5 habitaciones, y ahora tiene 4 de muy buen tamaño, todas exteriores excepto una. 2 grandes terrazas: una de 22m2 orientada a sureste y otra de 18m2 orientada a noroeste, por lo que podrás escoger en cada momento del día una con sol y otra con sombra. Cocina nueva abierta a salón-comedor con mucho espacio de almacenamiento. 95m2 construidos de piso + 40m2 de terrazas privadas al mismo nivel. Gran salón-comedor y dormitorios amplios, piso con los metros muy bien aprovechados, con muy poco pasillo.
Un piso muy amplio y agradable para disfrutar en todas las épocas del año! No lo dudes y llámanos para concertar una visita a tu nuevo hogar.
NO COBRAMOS COMISIÓN AL COMPRADOR.
NO incluidos en el precio gastos e impuestos que corresponden al comprador: ITP, registro, gestoría y notaría. NO COBRAMOS COMISIÓN DE AGENCIA AL COMPRADOR, así que puedes estar tranquilo de que no te cobraremos nada más.
Piso en venta en exclusiva en Perfect Home Barcelona – La inmobiliaria diferente